- 淄博市福民化工设备有限公司
- 地址:山东淄博张周路7号
- 手机:18653342297 王经理
- 电话:400-0533-907
- 传真:+86-533-2860177
- 邮箱:fuminsale@126.com
- 淄博市福民化工设备有限公司
- 地址:山东淄博张周路7号
- 手机:18653342297 王经理
- 电话:400-0533-907
- 传真:+86-533-2860177
- 邮箱:fuminsale@126.com
ZF型搪玻璃贮罐\储罐(闭式)
来源:未知??日期:2015-05-18



技术参数:
1.设计压力:罐体=0.2MPa、0.4MPa、0.6MPa、1.0MPa、夹套=0.6MPa
2.搅拌器:具有多种型式的搅拌器供用户选择
3.减速机:立式减速机
4.轴封:填料密封(0.2MPa)、单端面机械密封((OAMPa)、双端面机械密封(O.6MPa. l一 OMPa)
5.罐体设计压力超过0.6MPa的搪玻璃反应罐需特殊定货
6.ZF系列储罐主体尺寸符台HG/ T2371-92. GB:T 25027-2010标准,并在此基础上进行了改进。
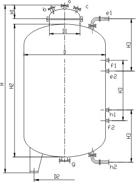
ZF型搪玻璃储罐管口方位:

ZF系列反应罐搪瓷反应罐外型尺寸及其参数表:

★ 温馨提示:以上ZF系列搪玻璃储罐参数符合HG5-251-79标准,本公司所使用的产品部分图片为合成图、模拟演示图、效果图,与实物可能存在细微的差别,所以效果演示图和示意图仅供参考。
ZF型搪玻璃贮罐\储罐(闭式)同其他搪玻璃反应釜、搪玻璃反应罐类似都是经过将含硅量高的瓷釉涂于金属表面,通过950℃搪烧,使瓷釉密着于金属铁胎表面制成,从而使ZF型搪玻璃贮罐\储罐(闭式)具有玻璃的化学稳定性和金属强度的优点更加突出。
ZF型搪玻璃贮罐\储罐(闭式)的优点使其使用的场合也是不同的,ZF型搪玻璃贮罐\储罐(闭式)被广泛应用于医药、化工、有机合成、染料和国防工业等工业生产和科学研究中的反应、蒸发、浓缩、合成、萃取、聚合、皂化、矿化、氯化、硝化等,以代替昂贵的不锈钢和有色金属。
ZF型搪玻璃贮罐\储罐(闭式)另一个优点则是具有耐腐蚀性,对各种浓度的无机酸、有机酸、有机溶剂及弱碱等介质均有极强的抗腐性。需要大家注意的事ZF型搪玻璃贮罐\储罐(闭式)的耐腐蚀对强碱、氢氟酸及含氟离子介质,以及温度大于180℃,浓度大于30%的磷酸等来说就不适用了,为了保证各方面的安全,还是希望大家能够按照ZF型搪玻璃贮罐\储罐(闭式)的使用标准规范来操作。
淄博福民化工公司设计制造的化工设备主要依据标准:GB150-2011《压力容器》和《压力容器安全技术监察规程》以及GB 25025-2010《搪玻璃设备技术条件》。如果您有需要,欢迎来咨询福民在线顾问,我们会以设备质量可靠和周到的服务,获得与您合作的机会,祝您生活愉快!


上一篇:ZK型搪玻璃贮罐\储罐(闭式)
下一篇:ZW型搪玻璃贮罐\储罐(卧式)




